中古/ふじみ野市南台1丁目

2,400万円

埼玉県ふじみ野市南台1丁目

東武東上線「上福岡」駅徒歩14分

東武東上線「ふじみ野」駅徒歩16分

東武東上線「新河岸」駅徒歩44分

価格
2,400万円
間取り/建物面積
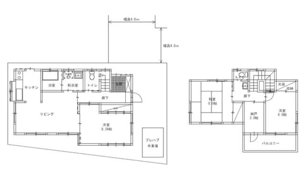
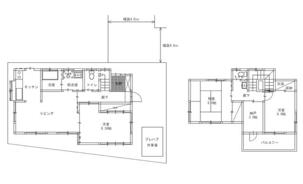
3LDK+S(納戸)/98.52㎡
所在地
埼玉県ふじみ野市南台1丁目
築年
1993年4月(築32年)
駐車
有(1台)
交通

東武東上線上福岡」駅 徒歩14分

東武東上線ふじみ野」駅 徒歩16分

東武東上線新河岸」駅 徒歩44分

中古/ふじみ野市南台1丁目の基本情報

物件名
中古/ふじみ野市南台1丁目
価格
2,400万円
建物面積
98.52㎡
土地面積
32.32坪(106.85㎡)
築年月
1993年4月(築32年)
総戸数
1戸
所在地
埼玉県ふじみ野市南台1丁目
交通

東武東上線上福岡」駅 徒歩14分

東武東上線ふじみ野」駅 徒歩16分

東武東上線新河岸」駅 徒歩44分

中古/ふじみ野市南台1丁目の詳細情報

設備条件
設備(その他)
    -
駐車場/月額
有(1台)/0円 ※車種による
土地権利
所有権
国土法届出
不要
用途地域
第一種住居
取引態様
仲介
引渡し
相談
備考
こだわりポイント満載の中古/ふじみ野市南台1丁目。こちらの物件はふじみ野市立駒西小学校が736m以内にあります。駅徒歩14分の場所にある物件です。こちらの物件は中古戸建物件です。豊富な物件情報を取り扱っているアルスビレッジ みずほ台店でなら、ふじみ野市でもスムーズに不動産を探すことができるでしょう。

中古/ふじみ野市南台1丁目で募集中の物件

  1. 29.80坪 (98.52㎡)

    2,400万円(80.54万円/坪)

周辺施設

  • コモディイイダ 南台店の画像

    スーパー

    コモディイイダ 南台店

    266m(4分)

  • となりのすまいる保育園の画像

    保育園

    となりのすまいる保育園

    378m(5分)

  • 竹下内科の画像

    内科

    竹下内科

    418m(6分)

  • 鶴ケ舞公園の画像

    公園

    鶴ケ舞公園

    537m(7分)

  • 香取幼稚園の画像

    幼稚園

    香取幼稚園

    714m(9分)

  • ふじみ野市立駒西小学校の画像

    小学校

    ふじみ野市立駒西小学校

    736m(10分)

  • ファミリーマート ふじみ野駒林店の画像

    コンビニエンスストア

    ファミリーマート ふじみ野駒林店

    759m(10分)

  • スギドラッグ 駒林店の画像

    ドラッグストア

    スギドラッグ 駒林店

    857m(11分)

  • ふじみ野市立福岡中学校の画像

    中学校

    ふじみ野市立福岡中学校

    1023m(13分)

  • ふじみ野駅の画像

    ふじみ野駅

    1269m(16分)

近隣の物件

  1. ふじみ野市大井中央4丁目

    4LDK (92.74㎡)

    3,980万円

  2. ふじみ野市福岡武蔵野

    3LDK (89.43㎡)

    4,390万円

  3. ふじみ野市大井中央1丁目

    3LDK (101.02㎡)

    4,580万円

  4. ふじみ野市西鶴ケ岡2丁目

    3SDK (81.14㎡)

    2,399万円

よく見られている物件

  1. ふじみ野市大井中央4丁目

    4LDK (92.74㎡)

    3,980万円

  2. 入間市高倉1丁目

    3LDK (63.20㎡)

    980万円

  3. 朝霞市根岸台7丁目

    2K (24.23㎡)

    488万円

  4. 比企郡吉見町大字久保田

    3LDK (62.25㎡)

    390万円

中古/ふじみ野市南台1丁目

お気軽にお問い合わせください

無料お問い合わせ

アルスビレッジ株式会社 みずほ台店

049-293-6941

9:30~18:00

(休:火・水曜日(土日祝日も営業中))